Montpellier (34000) Studio de 28,35 m² | Quartier Port Marianne / Arbre Blanc – Proximité Faculté Richter

Réf : GIMBAUD007 109 000 €

STUDIO T1 À VENDRE – INVESTISSEMENT LOCATIF DANS UNE RÉSIDENCE RÉHABILITÉE


Montpellier – Quartier Port Marianne / Arbre Blanc – Proximité Faculté Richter



Situé dans une résidence des années 70 en cours de réhabilitation complète, ce bien bénéficie d’une transformation de bureaux en appartements modernes et connectés. Immeuble indépendant avec entrée privative, au sein d’une copropriété sécurisée.



Caractéristiques du bien :


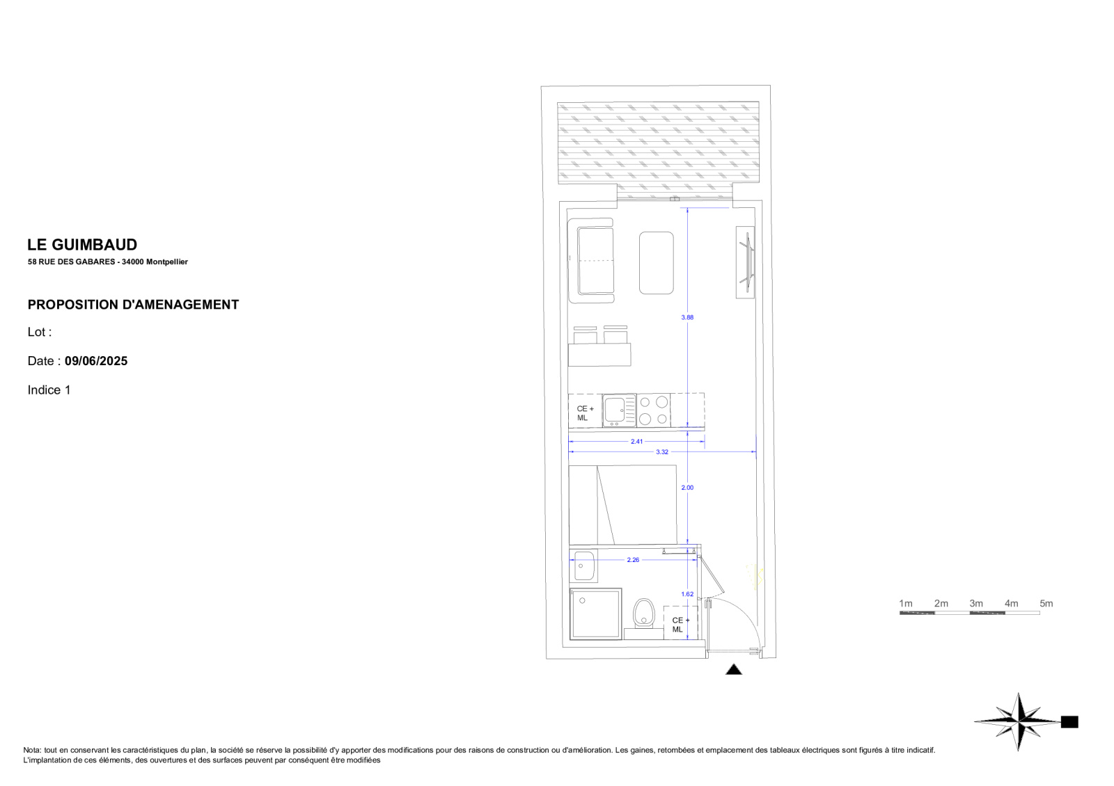
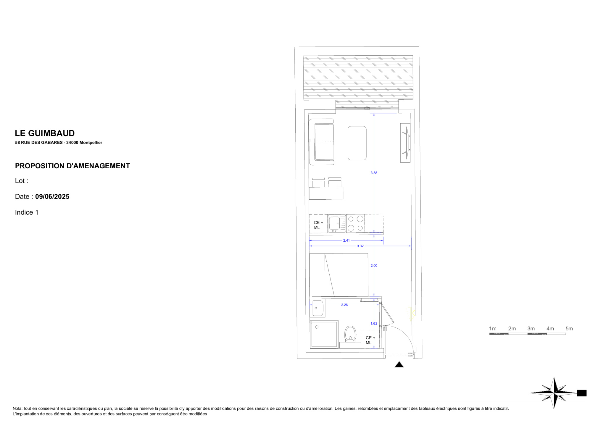
- Plateau brut de 28,35 m², à aménager selon vos besoins ou selon une configuration proposée.

- Terrasse extérieure de 4,9 m²

- Menuiseries neuves en aluminium, double vitrage, volets roulants électriques.

- Cage d’escalier rénovée, décoration artistique dans les communs, vidéophone, accès sécurisé Vigik.

- Réseaux fibre, eau, électricité, téléphonie entièrement refaits.

- Local à vélos.

- Option : place de parking en sus.

 


 

Un investissement sécurisé et optimisé fiscalement

Acquisition en Vente d’Immeuble à Rénover (V.I.R.), avec toutes les garanties :


- Garantie décennale

- Garantie biennale

- Garantie Financière d’Achèvement (GFA)

- Éligibilité au Déficit Foncier

 

Livraison prévue : 3e trimestre 2026

Photos non contractuelles – Suggestions d’aménagement

 

Pourquoi investir ?


- Liberté totale d’aménagement pour créer un espace à votre image.

- Avantages fiscaux : Déficit Foncier, LMNP.

- Résidence pleine de charme, complètement rénovée.

- Travaux clés en main possibles sur demande.

 


 

Une question ? Une simulation ou une visite ? Contactez Arnaud BOUSQUET 06 58 19 49 58 ou contact@casae.fr

TRAD_SIROCCO_Caracteristique Valeurs
Code postal 34000
Surface habitable (m²) 28,35 m²
Nombre de pièces 1
Etage 1
TRAD_SIROCCO_Caracteristique Valeurs
Nb de salle d'eau 1
Cuisine Kitchenette
Terrasse OUI
Nombre de parking 1
Quartier port marianne
TRAD_SIROCCO_Caracteristique Valeurs
Copropriété OUI
Lot n° 7
nombre de lots 122
TRAD_SIROCCO_Caracteristique Valeurs
Prix de vente honoraires TTC inclus 109 000 €
DPE GES
DPE non concerné
  • Commerces et santé
  • Loisirs
  • Ecoles
  • Transports
  • Pratique

Nos outils

Imprimer
Intéressé(e) par Ce bien ?

* Champ obligatoire

contacter l'agence

Les informations recueillies sur ce formulaire sont enregistrées dans un fichier informatisé par La Boite Immo agissant comme Sous-traitant du traitement pour la gestion de la clientèle/prospects de l'Agence / du Réseau qui reste Responsable du Traitement de vos Données personnelles. La base légale du traitement repose sur l'intérêt légitime de l'Agence / du Réseau. Elles sont conservées jusqu'à demande de suppression et sont destinées à l'Agence / au Réseau. Conformément à la loi « informatique et libertés », vous disposez des droits d’accès, de rectification, d’effacement, d’opposition, de limitation et de portabilité de vos données. Vous pouvez retirer votre consentement à tout moment en contactant directement l’Agence / Le Réseau. Consultez le site https://cnil.fr/fr pour plus d’informations sur vos droits. Si vous estimez, après avoir contacté l'Agence / le Réseau, que vos droits « Informatique et Libertés » ne sont pas respectés, vous pouvez adresser une réclamation à la CNIL. Nous vous informons de l’existence de la liste d'opposition au démarchage téléphonique « Bloctel », sur laquelle vous pouvez vous inscrire ici : https://www.bloctel.gouv.fr Dans le cadre de la protection des Données personnelles, nous vous invitons à ne pas inscrire de Données sensibles dans le champ de saisie libre.
Ce site est protégé par reCAPTCHA, les Politiques de Confidentialité et les Conditions d'Utilisation de Google s'appliquent.

Ces biens peuvent aussi vous intéresser
Montpellier (34000)

Studio de 31,35 m² + terrasse | Montpellier – Quartier Port...

Montpellier (34000)

Studio de 28,35 m² | Quartier Port Marianne / Arbre Blanc –...

Nous suivre sur
Prendre Contact
04 67 55 22 94 contact@casae.fr 1 rue Baudin - Place de la Comédie
34000 Montpellier